Astegiudiziarie.it è parte di Rete Aste Network

Accedi o registrati

Non sei ancora registrato?

Oppure

Accedi

giudiziariagiudiziariaTribunale di GELAESECUZIONI CIVILI IMMOBILIARIESPROPRIAZIONE IMMOBILIARE (CARTABIA)442024Delegato alla venditaMario francesco gaetano CosenzaCSNMFR59R17D960Iastegiudiziarie.gela@gmail.com3337620438truetrueGiudicePatrizia Castellanofalsefalse23153811IMMOBILIIMMOBILE COMMERCIALEVia Tevere, 114, 93012 Gela CL, Italia93012GelaCaltanissettaSiciliaItaliaFabbricato commerciale esteso metri quadrati 1.484 circa, inclusi porticato e terrazze, composto da piano terra, primo e secondo piano (categoria catastale D/8).2994186IMMOBILE COMMERCIALENEGOZIOVia Tevere, 114, 93012 Gela CL, Italia93012GelaCaltanissettaSiciliaItaliaFabbricato commerciale esteso metri quadrati 1.484 circa, inclusi porticato e terrazze, composto da piano terra, primo e secondo piano (categoria catastale D/8).2025-11-14T19:30:00SENZA INCANTOSINCRONA MISTAvia g.n. bresmes, 593012GelaCaltanissettaSiciliaItalia1.600.000,001.200.000,0015.000,002025-11-13T13:00:00sito pubblicitahttps://www.astegiudiziarie.ithttps://www.astegiudiziarie.itgestore delle venditehttps://www.spazioaste.ithttps://www.spazioaste.itsito pubblicitahttps://www.astalegale.nethttps://www.astalegale.net2025-08-28

Negozio

Via Tevere, 114, 93012 Gela CL, Italia, Gela (CL)

€ 1.600.000,00

Offerta minima € 1.200.000,00


Codice A4334805

Lotto 1

Data udienza 14/11/2025 ore 19:30

Termine presentazione offerte 13/11/2025 ore 13:00

Negozio

Via Tevere, 114, 93012 Gela CL, Italia, Gela (CL)

€ 1.600.000,00

Offerta minima € 1.200.000,00


Codice A4334805

Lotto 1

Data udienza 14/11/2025 ore 19:30

Termine presentazione offerte 13/11/2025 ore 13:00

Ti interessa questa vendita?

Documentazione

Visualizza su mappa

Mappa geografica del bene

Punti di interesse

Fonte dati

Nel raggio di {{range}}Km

Loading...
  • {{ getIcon(poi.type) }} {{ poi.localized }}: {{poi.count}}
  • {{ getIcon(poi.type) }} {{ poi.localized }}: {{poi.count}}
Dati non disponibili

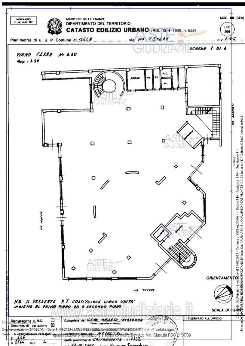
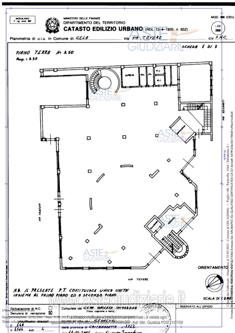
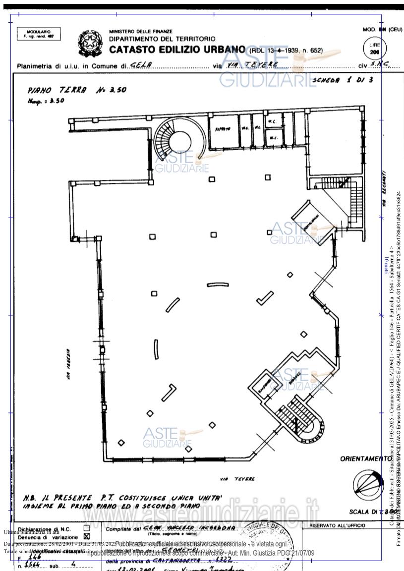
Fabbricato commerciale esteso metri quadrati 1.484 circa, inclusi porticato e terrazze, composto da piano terra, primo e secondo piano (categoria catastale D/8).

Indirizzo
Via Tevere, 114, 93012 Gela CL, Italia, Gela (CL)


Codice asta
4334805


Lotto
1


Numero beni
1


Genere
Immobili


Categoria
Immobile commerciale


Valore di stima
-


Negozio

Fabbricato commerciale esteso metri quadrati 1.484 circa, inclusi porticato e terrazze, composto da piano terra, primo e secondo piano (categoria catastale D/8).

Indirizzo
Via Tevere, 114, 93012 Gela CL, Italia, Gela (CL)


Piano
-


Disponibilità
-


Vani
-


Bagni
-


Metri quadri
-


Certificazione energetica
-


Data udienza
14/11/2025 ore 19:30


Tipo di vendita
Senza incanto


Modalità di vendita
Sincrona mista


Luogo
via g.n. bresmes, 5 - Gela 93012


Luogo presentazione offerte
-


Termine presentazione offerte
13/11/2025 ore 13:00


Prezzo base
€ 1.600.000,00


Offerta minima
€ 1.200.000,00


Rialzo minimo in caso di gara
€ 15.000,00


Deposito cauzionale
10% del prezzo offerto


Deposito in conto spese
-


Tribunale
Gela

Tipo di procedura
Espropriazione immobiliare (cartabia)

Ruolo
44/2024

Giudice
Castellano Patrizia

Recapiti
-

Email
-

Delegato alla vendita
Cosenza Mario francesco gaetano
(Procede alle operazioni di vendita)
(Gestisce la visita del bene)

Recapiti
Cell. 3337620438

Scheda COD. 4334805 - Pubblicata dal 01/09/2025

La presente scheda di vendita riporta integralmente informazioni e documenti pervenuti ufficialmente dal Ministero e dal professionista incaricato.


Pubblicazione autorizzata dall’Autorità competente, è vietata ogni ripubblicazione o riproduzione anche parziale


Ti interessa questa vendita?

Documentazione

Visualizza su mappa

Mappa geografica del bene

Punti di interesse

Fonte dati

Nel raggio di {{range}}Km

Loading...
  • {{ getIcon(poi.type) }} {{ poi.localized }}: {{poi.count}}
  • {{ getIcon(poi.type) }} {{ poi.localized }}: {{poi.count}}
Dati non disponibili